 
| 所在階 | 間取り | 間取り詳細 | 専有面積 | 賃料 | 管理費 | 敷金・保証金 | 礼金 | 詳細 | 
|---|---|---|---|---|---|---|---|---|
| 1階 | 3LDK | LD(9.8帖) 洋室(6.3帖) 洋室(4.3帖) 和室(6帖) | 65.15㎡ | 97,000円 | 8,000円 | 2ヶ月 | 0ヶ月 | 見る | 
| 7階 | 3LDK | LD(9.4帖) 洋室(6.3帖) 洋室(4.1帖) 和室(6帖) | 65.15㎡ | 102,000円 | 8,000円 | 2ヶ月 | 0ヶ月 | 見る | 
| 物件種別 | マンション | ||
|---|---|---|---|
| 物件名 | ファインドエル2新宿 | ||
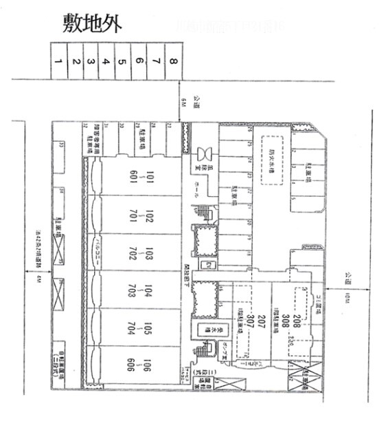
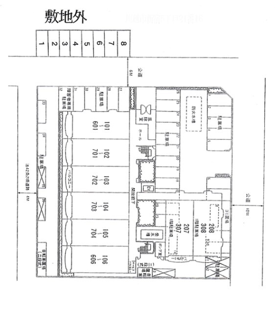
| 物件所在地 | 埼玉県 川越市 新宿町 5丁目 | ||
| 交通機関 | |||
| 近隣情報 | 
 | ||
| 特記事項 | ファミリータイプ, ペット:不可 | ||
| 賃料 | 97,000円 ~ 102,000円 | 管理費/共益費 | 8,000円 | 
| 間取り | 3LDK | 竣工月 | 1995年1月 | 
| 建築構造 | SRC | 建物階建 | 地上7階 | 
| 駐車場 | 有(空きについては要問合) | 駐車料 | 6,050円 | 
| 火災保険 | 有 | 保証会社 | 必加入
オリコフォレントインシュア 
 ■保証会社(家賃支払) ・個人契約の場合は、当公社指定の保証会社加入が入居条件となります。 法人契約の場合は、都度ご確認ください。 ・保証会社の保証料について(株式会社オリコフォレントインシュアの場合) 初回保証料:15,000円 月次保証料:毎月の | 
| 設備 | 駐輪場, エレベーター基数(1) | ||
| 備考 | その他条件や詳細についてはお問い合わせください。 | ||
| 所在地 | 〒175-0094 東京都板橋区成増3-12-1 | ||
|---|---|---|---|
| 営業時間 | 9:00~17:30 | 定休日 | 年中無休 |